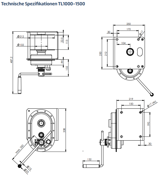
Stirnradseilwinde TL 1000/1500

Artikelnummer 508119-110000
Wählen Sie Ihre Produktvariante

Ansprechpartner:

Hinweise

Optional:

- galvanisch verzinkte Oberfläche
- 2 Beschichtungen
- Edelstahl der Güteklasse 304 (SST304)
- 2 Trommelfächer (2D)
- Aufspulvorrichtung für ziehende Anwendungen. zum Auskuppeln der Trommel (FS)
- ATEX zertifiziert Zone 2 und 22 (EX)
CE II 3G Ex IIC T3 Gc, -20°C< T <+70°C
CE II 3D Ex IIIC T135°C Dc, -20°C< T <+70°C

Nutzen Sie unseren kompetenten Prüf-, Reparatur- und Wartungsservice für die jährlich vorgeschriebenen Prüfungen!

Diese Stirnradseilwinde ist schnell, einfach und kann sowohl an der Wand als auch am Boden montiert werden. Die Option der freien Spule ist daher auch für diese Winde verfügbar. Neben der Wasserfestigkeit IP54 ist diese Winde auch in Edelstahl 304 erhältlich. - Winde geeignet zum Heben und Ziehen gemäß EN13157 - statischer Sicherheitsfaktor 4 - hoher Wirkungsgrad durch Stirnradgetriebe - Schutzart IP54 - wartungsfreie Lager - Lastdruckbremse mit doppeltem Ratschensystem für sicheren, stabilen Halt der Last in jeder Position - Kabelausgang nach oben, nach unten oder nach links - geschlossenes Getriebe zum Schutz vor Umwelteinflüssen - verstellbare Kurbel - geeignet für Wand- und Bodenmontage - eine Farbschicht
Name Zuglast 1.Seillage in kg Kurbelkraft bei Volllast in kg Mindestbruchkraft des Seiles in kN Seilaufnahme 1. Schicht in m Seilaufnahme 4. Schicht in m Seilaufnahme letzte Schicht in m Seildurchmesser in mm Seilgeschwindigkeit ca. in m/min Zuglast 2. Seillage in kg Zuglast oberste Seillage in kg Gewicht (ohne Seil) in kg
TL 1000 1000 11 34 3,5 19,5 33 8 1,2 726 614 27
TL 1500 1500 12 51 2,5 15,4 21 10 0,8 1025 927 27,5

Name Artikelnr. Zuglast 1.Seillage in kg Downloads Angebot anfordern
TL 1000 508119-111000 1000
TL 1500 508119-111500 1500
Flexibilität in Produktaufbau, Stückzahlen und Lieferzeit
Einfache Lösungen für komplexe Anwendungen
Hohe Servicequalität durch geschulte und motivierte Mitarbeiter
Stetige Lieferbereitschaft durch hohe Lagerhaltung
Ineinandergreifen von Tradition, Know-How und fortlaufende Weiterentwicklung
Copyright © 2024 Seilerei Voigt